- Возможные варианты планировки
- Совместный санузел: как оформить
- Раздельный санузел: принципы оформления
- Варианты отделки стен и потолка
- Что рекомендуют профессионалы
Покупая квартиру в девятиэтажном панельном доме или проводя в ней ремонт, мы уделяем значительное время организации пространства в каждой комнате. Однако, когда речь заходит о ванной комнате, творческие возможности ограничиваются простым облицовыванием плиткой и установкой нескольких крючков.
Конечно ванная это помещение достаточно небольшого размера, достигая в совмещенном виде максимум 7 квадратов. Однако, такие показатели даже роскошные, зачастую размеры колеблются в пределах 4-5 метров.
Какую планировку выбрать
Перед тем как начинать придумывать дизайнерские решения для своей уборной, подумайте о перепланировке санузла и ванной.
- объединить ванну и туалет в одно помещение;
- оставить их отдельными комнатами.
Перепланировка ванной комнаты в панельном доме не добавит слишком много места. Совмещенные варианты зачастую имеют площадь 5 м2 (намного реже 7 м2), не совмещенные – 4 м2. Так что, и тот, и этот вариант не дает особой возможности разгуляться воображению.
Интересно! Существуют варианты квартир в панельных 9 этажных домах, когда санузел уже совмещен. Иногда такие комнаты делят на две.

Один из вариантов дизайнерского решения
Рассмотрим более подробно каждый из вариантов.
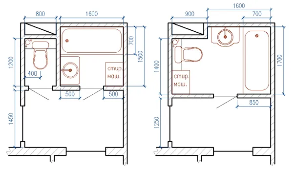
Совместный санузел
Совместив ванную и туалет, вы получаете большую площадь ванной комнаты. Есть место, чтобы поставить стиральную машину, раковину, небольшой шкафчик и полочки. Если оставить санузел раздельно, многое из выше перечисленного, придется убрать.

Варианты планировки совмещенного санузла
Однако если объединить, могут появиться некоторые неудобства. Например, не будет возможности пользоваться ванной и туалетом одновременно.
Важно! Помните, если у вас большая семья, то от совмещенного варианта стоит сразу же отказаться, иначе могут возникнуть споры и трудности.

Варианты перепланировки совмещенного санузла и раздельного
При объединении данных пространств, у вас отпадает необходимость проводить отделку плиткой с двух сторон перегородки. А значит, вы экономите деньги. Также в нишу одной из дверей прекрасно может вписаться раковина, шкафчик или стиральная машина.
Удачным решением станет заменить громоздкую ванную компактным душем или душевой кабиной. Если же желания производить такой обмен нет, у вас только одно решение – расширить пространство за счет визуального обмана. Можно использовать глянцевую плитку светлых тонов или большие зеркала.

Довольно интересные решения по планировке можно осуществить и в небольшом помещении
Еще одним советом будет избегать захламления пространства. Старайтесь по максимуму спрятать все небольшие вещи с глаз, на полки, в корзинки или шкафчики.
Идеи оформления ванны без туалета
Однако, при переделке ванной комнаты, не обязательно сносить стены. Можно оставить все как есть. Интересным решением будет вместить маленькую раковину в туалет. Также все трубы коммуникаций можно спрятать, при этом создав на задней стенке помещения очень удобные шкафы с полками из гипсокартона. В самой ванной можно также достаточно компактно все обустроить.

Небольшой туалет можно оформить довольно современно и стильно
Благодаря тому, что сейчас можно купить огромное разнообразие сантехники, то есть из чего выбрать очень компактные варианты. К примеру, выбрать раковину, под которую можно установить узкую стиральную машину. И тогда у вас будет достаточно места и для других приспособлений. Также для экономии пространства можно использовать угловую сантехнику.
Чем отделывать поверхности
При выборе материала для облицовки поверхностей в ванной, помните о таких параметрах, как влагостойкость, износостойкость, небольшая пористость, отсутствие реакции на химические моющие и чистящие вещества
Потолок
- Специальная краска — самый простой вариант для потолка ( бывает на силиконовой или акриловой основе). Она может прослужит вам 5 — 6 лет, но со временем качество покрытия будет ухудшаться покрываясь пятнами и ухудшая цвет.

- Полихлорвиниловые панели или ПВХ — много вариантов дизайна, расцветки и форм. Известны своей износостойкостью. Поможет скрыть неровности и дефекты потолка, если такие присутствуют. Самый большой плюс низкая стоимость.

- Потолочная плитка ( бывает пенопластовая, пластиковая, гипсовая и керамическая) — клеится на потолок с помощью специального клея. Может справиться даже специально не подготовленный человек. Срок службы 3 -4 года.

- Подвесной потолок (реечные панели )

- Натяжной потолок— большой плюс этой системы в том, если вас затопили соседи с верху он возьмет на себя 2 кубометра воды.

Водостойкость натяжного потолока
Пол и стены
Поскольку помещение небольшого размера, лучше остановить свой выбор для отделки стен и пола на керамической плитке. Это дает вам ряд преимуществ:
- вы найдете уйму вариантов, которые будут отличаться по цвету, форме и фактуре.
- такой материал в небольшой комнатке не будет портиться от постоянной влаги и пара, что немаловажно;

Лучше всего предусмотреть установку теплого пола . Это удобно и комфортно, плюс, помещение будет быстрее просыхать от влаги. Если же бюджет не позволяет, или нет желания, стоит продумать специальный коврик на полу;
Важно! Для того чтобы качественно установить плитку в помещении, лучше всего прибегнуть к помощи специалистов.
Один из самых практичных и долговечных способов — это наливной пол. Отделка занимает немного больше времени чем все остальные, но результат того стоит.

Дополните ванную комнату интересными аксессуарами
Советы по дизайну ванной в панельном доме
Благодаря разнообразию, которое можно встретить в магазинах, по фотографиям дизайна ванных, можно подобрать великолепные варианты.

Благодаря перепланировке можно добавить свободного пространства
Напоследок, пару небольших секретов, которые помогут сделать вашу ванную комнату действительно просторной и интересной:
- цвет стен и пола должен быть в одной тональности;
- для расширения пространства сделайте потолок глянцевым;
- мебель должна быть компактной, но вместительной;
- зеркала визуально добавят несколько сантиметров вашей уборной;
- воспользуйтесь встроенными светильниками, так будет уютнее;
- установите раздвижные двери, чтобы не занимать место.
И не бойтесь экспериментировать! Небольшая площадь не должна быть помехой для воплощения задуманного дизайна.
![]()
Сколько кв метров в ванной в панельном доме?
Площадь ванной комнаты в панельном доме может варьироваться в зависимости от конкретного дизайна и планировки квартиры, а также от года постройки дома. Однако, обычно в панельных домах ванная комната имеет площадь примерно от 4 до 6 квадратных метров.
Если у вас есть конкретные планы квартиры или же вы можете измерить площадь ванной комнаты, это будет наиболее точным способом определения её площади. Если же у вас нет точных данных, вы можете ориентироваться на средние значения, указанные выше.
