Сразу же хочу продемонстрировать вам, какие последствия возникают, если начать устанавливать крышу в соответствии с порядком, описанным в предыдущей статье (см. рис.). Мы можем наблюдать, что один фронтон будет иметь ширину 6 метров, в то время как другой – 7 метров. Если это соответствует контексту, то в новом тексте может быть использовано выражение «г-образная крыша«.
1)
Рисунок 1
В этом случае можно пойти двумя путями:
1) Один конёк делается ниже другого. Причём такая крыша имеет уже три фронтона (см. рис.2):
Рисунок 2
О такой конструкции мы поговорим в следующей статье, только на примере Т-образной крыши.
2) Крыша делается с опиранием стропил на балки перекрытия. При этом коньки возможно сделать на одной высоте. Такой вариант мы сейчас и рассмотрим.
Небольшое отступление. В этой и в предыдущей статьях я всегда говорю о фронтонах. Но вместо фронтонов могут быть и вальмы и полувальмы. Смотрите, например, рисунок 3. Здесь каждый человек волен фантазировать.

Рисунок 3
Итак, наш пример:
ШАГ 1: Устанавливаем балки перекрытия и выноса. (см.рис.4):

Рисунок 4
ШАГ 2: Ставим угловые выноса.
Для этого сначала нужно пришить на наружном углу коробки дома по одной ветровой доске, чтобы найти угол карниза. Затем натягиваем между наружным и внутренним углами шнурку (см. рис. 5):

Рисунок 5
Все ветровые доски сразу не пришиваем, потому что они будут мешаться при разметке и установке стропил скатов.

Рисунок 6
ШАГ 3: Ставим коньковую доску и стропила скатов (см. рис.7):

Рисунок 7
ШАГ 4: Ставим угловое стропило на наружный угол коробки дома (см. рис.8). Эта операция также уже была подробно описана — шаг 8.

Рисунок 8
ШАГ 5: Изготавливаем и устанавливаем угловое стропило в ендове. Так же как мы делали в прошлой статье, половинки углового стропила будут стёсываться, но на разную величину, так как, напомню ещё раз, углы наклона скатов, сходящихся в ендове, различные.
Итак, натягиваем шнурку в ендове, как показано на рис. 9:

Рисунок 9
Замеряем с помощью малки угол нижнего запила углового стропила??? (см. рис. 10):

Рисунок 10
Высчитываем угол верхнего запила:
? = 90° — ?
Берём небольшой обрезок доски с сечение стропила и запиливаем один его конец под углом?. Прикладываем его вверху ендовы, как показано на рис.11. Отмечаем линию запила параллельно коньковой доске справа.

Рисунок 11
Делаем запил и снова приложив шаблон замеряем расстояние показанное на рис. 12:

Рисунок 12
С помощью топора или бензопилы срезаем на это расстояние верхнюю грань правой половинки углового стропила
Итак, угол нижнего запила??? нам известен, шаблон верхнего запила имеется. Теперь мы замеряем рулеткой длину стропила, делаем запилы и стёсываем верхнюю грань.
Левую половинку размечаем и изготавливаем аналогично. Будет отличаться размер, на который стёсывается верхняя грань.
Результат показан на рис.13:

Рисунок 13
Да, ещё забыл сказать, что нижний конец обоих половинок углового стропила нужно будет чуть-чуть подпилить. На рисунке 14 на примере правой половинки показано место спила (синим цветом):

Рисунок 14
Вальмовая крыша – это крыша, которая имеет четыре ската, два из которых (торцовые) имеют форму треугольника. Они называются вальмы и располагаются от конька до карниза. Еще два ската имеют форму трапеции. Если торцовые скаты обрываются, не дойдя до карниза, то такая конструкция называется полувальмовая крыша или голландская.
Вальмовая четырехскатная крыша зачастую возводится на частных домах в городе или деревне. Таким образом, хозяин имеет просторный и удобный чердак, а его домик получает привлекательный, симпатичный внешний вид.
Сделать вальмовую крышу своими руками не так уж и сложно, как это может показаться с первого взгляда, особенно человеку, без достаточных познаний и опыта в области строительства. Процесс, конечно, не из простых, но вполне по силам для человека, у которого руки растут как надо. Здесь нет ничего сверхъестественного, особенно если воспользоваться нашими советами.
Те, кого заинтересовала вальмовая крыша, могут найти видео и инструкции в сети Интернета по ее строительству. Но без правильной разметки и планировки провести работы будет не возможно. Грамотный подход позволит избежать различных неприятностей и сложностей, которые зачастую возникают непосредственно в процессе выполняемых работ.
Прежде чем приступить к строительству, сначала необходимо выяснить все нюансы касательно данной конструкции крыши, особенно про стропильные системы вальмовых крыш. Кроме этого, нужно тщательно произвести все необходимые замеры и сделать соответствующую разметку.
Чертежи вальмовой крыши происходят с помощью обычной разметочной рейки и всем известной еще со школьных времен теоремы Пифагора. Главное в этом процессе не торопиться и сделать все обдуманно.
Правильно сделанный проект вальмовой крыши с правильной разметкой позволит самостоятельно выполнить все надрезы на конструкции, которые потребуются в процессе строительства.
Основная часть замеров для возведения вальмовой крыши производится, начиная от нижнего ребра.
Основные правила возведения конструкции вальмовой крыши
Необходимо помнить, что промежуточные части стропил всегда более крутые, чем угловые части, поэтому размер досок и бревен, которые применяются при изготовлении стропильной системы, должен быть не меньше 50х150 мм.
В отличие от обычной скатной крыши, короткие элементы конструкции стропил необходимо прикреплять не к коньковой доске, а к угловым частям системы стропил. Уклон промежуточных частей данной системы при этом должен быть таким же, как и уклон ее коротких элементов.
Во время строительства вальмовой крыши, для изготовления системы стропил и коньковой доски применяется такой же материал.
Вальмовая кровля возводится с помощью промежуточного центрального типа стропил, которые крепятся по двум краям коньковой доски.
Промежуточные стропила необходимо упереть помимо коньковой доски еще и в верхний уровень обвязки.
Проводя замеры, вместо обычной рулетки лучше использовать разметочную рейку. Это даст возможность выполнить всю разметку более качественно, соответственно, чертеж вальмовой крыши будет выполнен более точно, чем, если бы вы применяли для замеров стандартную рулетку.
Проводя замеры, вместо обычной рулетки лучше использовать разметочную рейку. Это даст возможность выполнить всю разметку более качественно, соответственно, чертеж вальмовой крыши будет выполнен более точно, чем, если бы вы применяли для замеров стандартную рулетку.
Делаем разметку вальмовой крыши
Прежде чем возвести вальмовую крышу, сначала нужно произвести ее разметку. Сначала, следует разметить осевую линию, которая расположена на верхнем уровне в обвязке части стены, что находится с торца здания.

Далее один конец разметочной рейки прикладывается к размеченной ранее линии для первого элемента стропил. На другой ее конец необходимо перенести линию боковой внутренней стены, которая отметит расположение промежуточного элемента всей стропильной системы.
Чтобы уточнить точную длину свеса стропил, необходимо перенести разметочную рейку на линию, которая соответствует внешнему контуру этой стены. Второй конец рейки нужно установить на образовавшийся свес кровли.
После этого размечаем место, где будет находиться второй элемент стропил центрального промежуточного типа. Нам необходимо для этого расположить рейку на краю боковой стены. На ней отмечаем точное положение стропильного элемента, который мы наметили расположить между верхним краем обвязки и боковой стеной. Именно так и предусматривает схема вальмовой кровли.
В остальных углах здания необходимо выполнить такую же последовательность действий. Это позволит нам сделать точную и грамотную разметку всех частей центра системы стропил, кроме этого снять правильные размеры коньковой доски.
Огромное преимущество данной процедуры разметки заключается в том, что вальмовая крыша, ее конструкция и устройство будет нами спроектировано без гипотез, предположений и догадок о том, нужно ли опускать стропильные угловые элементы, так как вся система стропил будет исполнена из материала, который обладает той же шириной и сечением.
Конструкция вальмовой крыши устроена таким образом, что за счет применения во всей системе стропил досок одинакового размера 150х50 мм иногда может получиться такое, что самые верхние части элементов стропил окажутся немного выше, чем верхние части угловых элементов. В результате, между материалом кровли и стропилами может образоваться промежуток, благодаря которому в помещении чердака происходит дополнительная циркуляция воздуха.
Конструкция вальмовой крыши устроена таким образом, что за счет применения во всей системе стропил досок одинакового размера 150х50 мм иногда может получиться такое, что самые верхние части элементов стропил окажутся немного выше, чем верхние части угловых элементов. В результате, между материалом кровли и стропилами может образоваться промежуток, благодаря которому в помещении чердака происходит дополнительная циркуляция воздуха.
Так как все части стропильной системы, которые применяются в строительстве вальмовой крыши, имеют форму прямоугольных треугольников, то более точный расчет можно сделать, применяя теорему Пифагора, которую мы уже упоминали выше.
Далее идет шаблон угла.
Теперь создадим шаблон угла верхнего запила из небольшой доски. Приложив его к верху ендовы, отметим черту запила так, чтобы она проходила параллельно коньковому бруску. Опять проложим шаблон и измерим длину до точки запила.
На величину этой длины стесывается одна грань правой части углового стропила. Таким же образом изготавливается левая часть. Она будет отличаться от правой на измеренную уже длину. На этом работа с верхними гранями стропила закончена, нижние концы потребуется немного подпилить.
На последующих этапах производится установка стоек, ригелей, нарожников. Производится обрешетка крыши. Подшивают карнизы и так далее.
Рейка, которая применяется для замеров
Перед тем как начинать делать замеры и наносить разметку, сначала нужно подробно изучить все элементы, составляющие крышу: вальму, скаты и так далее. Изучив ее устройство, необходимо также заранее предусмотреть способ соединения частей системы стропил между собой.

После того как мы разобрались с тем, как устроена вальмовая крыша, можно приступать к изготовлению рейки, которая будет использоваться для замеров.
Для большего удобства разметки крыши при нахождении метки, что находится на рейке, на большом расстоянии от глаз строителя, ширина этой рейки должна составлять более 5 сантиметров.
Для большего удобства разметки крыши при нахождении метки, что находится на рейке, на большом расстоянии от глаз строителя, ширина этой рейки должна составлять более 5 сантиметров.
Для того чтобы отметить расположение промежуточных элементов стропильной системы, необходимо приложить рейку к мауэрлату боковой стены.
Нужно также произвести непосредственно замер толщины стены, что даст возможность сделать правильную выборку на опорный элемент стропил и свеса кровли.
Для того чтобы не делать все замеры несколько раз, необходимо нанести на рейку все размеры, что используются при разметке.
Для того чтобы не делать все замеры несколько раз, необходимо нанести на рейку все размеры, что используются при разметке.
Это позволит сэкономить время, а также, в отличие от замеров с помощью рулетки, вы избежите ошибок в несколько миллиметров.

Такие, казалось бы, незначительные ошибки могут привести в результате к несостыковкам всей системы стропил, а это потребует исправления и проведения дополнительных работ.
Кроме этого, нужно заранее приготовить полный перечень всех коэффициентов, которые используются при разметке стропильной системы. Это позволит максимально точно и правильно изготовить конструкцию крыши.
К таким коэффициентам можно отнести такие показатели как: соотношения длины используемых элементов стропил к их расположению, а также разнообразные пропорции, характеристики различных уклонов и скатов и так далее.
Вывод
Теперь вы знаете как устроены разные стропильные системы, и можете взяться за их проектирование самостоятельно. Если возникнут сложности, пишите комментарии, и я с радостью помогу вам советом.
Понравилась статья? Подписывайтесь на наш канал Яндекс.Дзен
29 декабря 2021г.
Кровля,Элементы конструкции
Размечаем угловые элементы
Разметка угловых элементов стропильной системы для вальмовых крыш производится в несколько этапов:
- Отмечаем место стыка разметочного контура с верхней внутренней частью обвязки; Замеряем расстояние от намеченного места до контура разметки, а также расстояние к ближайшему промежуточному элементу стропил, что позволит нам вычислить горизонтальную проекцию. Это поможет нам рассчитать стропильную длину углового элемента системы; Разметочная рейка гораздо упростит работы по разметке. С ее помощью разметку боковых стен, которая уже выполнена, можно перенести на торцевые стены дома. Кроме экономии времени, это позволит также соблюсти точные расстояния между центральными элементами стропильной системы.
Полезно: для большего удобства замеров и разметки желательно изготовить специальный шаблон, к примеру, из ненужного листа фанеры, который обладает прямыми углами.
Например, если мы имеем значение уклона равное 612, шаблон нужно разметить так: с одного конца угла отмечаем 30 см, а с другого – 60 см. После этого путем соединения отметок получаем требуемый треугольник, по его контуру лист фанеры обрезается.
После этого следует прикрепить к большей стороне фигуры, что получилась, брус размером 50х50 мм. Помимо этого, на ней отмечаем коэффициент уклона скатов.
Разметка
Дабы Г-образная крыша была правильной, важно выполнить разметку на мауэрлате и затяжках. Сюда входит нанесение меток, где будут располагаться те или иные элементы скелета. Чтобы нанести эту разметку используется строительный карандаш, специальная мерная линейка и чертеж, на который нужно ориентироваться.
Для начала ставится метка на центральную часть торцевых стен дома формой Г, от центральных частей рисуеются прямые линии вдоль стен. По этой разметку будет установлен коньковый прогон. Длина двух коньков намечается так, как указано в чертеже (расположение опорных стоек тоже).
Следующий шаг – выполнить разметку течек расположения стропильных ног. Шаг указан в чертежах. Отметки наносятся на мауэрлате.
Совет! Стыковка угловых и обычных стропил выполняется методом врубки. Выпилы делаются только на стропилах так, чтобы они не были больше ¼ сечения. На мауэрлате вырубки делать нельзя. Это приведет к ослаблению конструкции.

В конце осталось разметить точки расположения угловых стропильных ног и нарожников. Теперь узнаем, как делается Г-образная крыша своими руками.
Полувальмовая крыша
В некоторых случаях вместо чердака хозяева решают устроить второй этаж. В таких случаях классическая модель вальмовой крыши не подойдет, так как на стенах нужно установить окна. Следовательно, нужна немного другая конструкция.

Полувальмовая крыша представляет собой вверху обычную двухскатную конструкцию, а снизу (между первым и вторым этажами) трапецию. Данная конструкция крыши придает всему строению очень оригинальный и интересный внешний вид, а также четко подчеркивает грань между этажами. Подобная конструкция чаще всего применяется для домов небольших размеров.
Полувальмовая крыша (четырехскатная) имеет вид мансардной конструкции с изломанным скатом. Зачастую она применяется в тех случаях, когда площадь желаемого помещения не возможно вписать в треугольную форму. Дело в том, что под крышей получается достаточно много свободного пространства, и его можно применять по своему усмотрению. Чтобы пространство под крышей не пропадало, его можно использовать как жилое.
По своей конструкции подобные крыши представляют собой что-то среднее между обычной вальмовой кровлей и обычной двускатной кровлей.
С чего же нужно начинать строительство? Как и вальмовая крыша, данная конструкция также требует подробных и точных расчетов. Если знания в данной области не достаточно глубоки, лучше заказать подробный расчет — полувальмовая крыша + чертеж + таблица у специалистов.
После этого, в соответствии с полученными показателями, необходимо закупить материал. При покупке особое внимание следует обратить на качество материала. Древесина должна быть сухой, без трещин и сучков. Прежде чем приступить к выполнению работ, необходимо тщательно обработать все деревянные элементы защитным раствором.
Кровля должна быть надежной и крепкой, поэтому очень важен точный расчет и качественное выполнение всех строительных работ.
Кровля должна быть надежной и крепкой, поэтому очень важен точный расчет и качественное выполнение всех строительных работ.
Специалисты не советуют новичкам браться за столь сложные конструкции, так как одна не значительная ошибка может привести к непредвиденным последствиям.
Если уж так сильно хочется соорудить крышу своими руками, то лучше стропильную систему доверить установить профессионалам, а вы можете заняться последующим монтажом и утеплением кровли.
Разметка конструкции

Чтобы крыша углового дома была собрана правильно и точно, нужно нанести на мауэрлат и затяжки разметку. То есть точные места расположения тех или иных элементов скелета. Для нанесения разметки используют строительный карандаш, специальную мерную линейку из фанеры и, конечно же, имеющийся на руках чертеж со всеми параметрами элементов каркаса.
- В первую очередь ставят наметку на центральные части торцевых стен Г-образного дома и чертят от них прямые линии вдоль длинных стен здания. Именно по этим линиям будет располагаться коньковый прогон. Длины обоих коньков намечают в соответствии с чертежом, так же, как и места расположения стоек-опор.
- Теперь следует наметить точки расположения стропильных ног. Их монтируют с шагом, указанным на чертеже. То есть на мауэрлат следует нанести своеобразные отметки — точки опор стропильных ног.
Важно: стыковать угловые стропила и обычные следует методом врубки. Но выпилы делают исключительно на стропилах таким образом, чтобы они не превышали четверть сечения пиломатериала. Делать врубки на мауэрлате строго запрещено. Это ослабит его и крыша своими руками смонтированная со временем прекосится.
- В последнюю очередь намечают точки расположения угловых стропил и нарожников.
Вальмовая г-образная крыша

Как известно, не все дома имеют форму квадрата или прямоугольника, соответственно г-образные дома нуждаются в г-образной крыше. Для снятия размеров и составления чертежей данной конструкции лучше пригласить специалистов, так как эта модель требует определенных знаний и умений.
Вальмовая кровля не слишком сложна в изготовлении, и самое главное, во время строительства произвести правильно все разметки и расчеты, при этом использовать специальную рейку, как мы уже говорили ранее, и таблицу коэффициентов.
Задумываясь о строительстве собственного дома или даже дачи, хочется чтобы дом был красивым, непохожим на соседние, удобным и функциональным. Еще неплох бы, чтобы он был недорогим. Крыша мансардного типа позволяет решить почти все эти задачи. Внешний вид дома получается интересным, причем здание может быть оформлено в разных стилях — все варианты комбинаций кровельного покрытия, вида и формы крыши, окон и балконов, и сосчитать, наверное, невозможно. Насчет стоимости стоит поговорить отдельно.
Комбинация скатов, направленных в разные стороны дает очень необычный эффект. Точно такой дом вы не назовете обычным
Выполняем расчеты для крыши
Первый шаг, перед тем как сделать Г-образную крышу – это проведение расчетов. Они должны быть точными. Нужно вычислить нагрузку на стропильную систему и другие параметры.

За основу берутся такие факторы:
- Уровень постоянной нагрузки. Здесь речь идет об общем весе кровельного пирога. Он будет оказывать на конструкцию большую нагрузку. Кровельный пирог крыши включает в себя систему, которая состоит из утеплителя, гидро- и пароизоляционного слоя, обрешетки и кровельного материала.
- Сезонная нагрузка на крышу. Сюда входят осадки разного типа: дождь, снег и ветер. К тому же нужно учитывать, что снег зимой может находиться на кровле постоянно. Вот почему нужно учитывать климатические особенности региона и выбрать правильный угол наклона Г-образной кровли. Благодаря этому сезонная нагрузка снизится. Например, если в вашем регионе много снега и дождя, то угол наклона делается большим. А вот в регионах с сильными ветрами лучше сооружать крышу, которая имеет пологий угол наклона. Парусность уменьшается, как и ветровая нагрузка на нее.
- Дополнительная нагрузка на крышу. Речь идет о дополнительных коммуникационных приспособлениях, таких как водяной бак, спутниковая тарелка, дымовая или вентиляционная труба.

Обратите внимание! Все расчеты лучше поручить специалисту.
Это ответственный момент, который должен быть выверен правильно. Учитывая все данные, перечисленные выше, он может сделать соответственный чертеж со всеми точными указаниями: выбранный угол ската и другие параметры конструкции. Отталкиваясь от чертежей и выполняется вся работа.
Сколько стоит построить мансарду
Устройство мансардного этажа считается выгодным из-за того что нет необходимости тратиться на возведение стен. Это верно только отчасти.
Во-первых, много средств уйдет на создание стропильной системы. Стоимость ее зависит от выбранного типа мансардной крыши (смотрите ниже) и от цены на пиломатериалы в вашем регионе.
Во-вторых, придется выложить немалую сумму на . Понятно, что одного только кровельного материала далеко недостаточно для обеспечения требуемых кондиций воздуха для жилых помещений (если мансарда планируется жилой). Придется утеплять, причем слой утеплителя должен быть значительным. Например, для средней полосы России слой минеральной ваты высокой плотности должен быть от 200 мм, плюс слой гидроизоляции и пароизоляции.
В-третьих, окна обходятся намного дороже. Если делать их слуховыми, сооружают специальную конструкцию из стропил, что усложняет рельеф крыши, а следовательно увеличиваются затраты на материалы и монтаж. Даже на обычной двускатной приходится думать об устройстве ендов и снегозадержании над окнами.

Второй вариант — окна в плоскости крыши — требуют особо тщательной заделки, чтобы осадки не могли попасть внутрь. Это делает установку дороже в 1,5-2 раза. Примерно на столько же дороже обходятся и сами окна: у них должна быть усиленная рама и армированное стекло, способное вынести снеговые нагрузки. Кроме того для обслуживания рама должна быть поворотной, а это — еще увеличение стоимости.

В мансарде ставят два типа окон — вертикальные и в плоскости крыши. Оба типа можно использовать в одном проекте. На фото ниже удачный пример такой комбинации. Точно не скажете, что дом незапоминающийся. А сколько еще может быть вариантов?

Мансардная кровля в несколько уровней — это тоже распространенный прием
Кроме всего, такие популярные и недорогие кровельные покрытия — материалы на основе металла типа профлиста, металлочерепицы, кровельного железа — использовать при устройстве мансардной крыши частного дома не советуют. Причины две:
- Высокая теплопроводность. Из-за того, что металл очень хорошо проводит тепло, приходится укладывать большую толщину теплоизоляционных материалов. Иначе летом в мансарде будет слишком жарко, а зимой — холодно. Повышенный уровень шумов, создаваемый покрытием во время дождя. Даже обычная крыша, покрытая металлом, во время дождя звучит как барабан. Мансардная намного больше по площади и «инструмент» получается более мощный. Если с уровнем шумов внутри помещения можно бороться дополнительной звукоизоляцией, то на улице звук вы ничем не уберете. Если дома соседей находятся на солидном расстоянии, это может быть и нестрашно, но если застройка плотная, могут возникнуть конфликты.
Если хорошо посчитать, дополнительная теплоизоляция и звукоизоляция сведут к минимуму выигрыш в стоимости при покупке кровельного материала. Возможно, другое, более дорогое изначально кровельное покрытие, в результате окажется более выгодным. Так что тут нужно просчитывать варианты.
Все это описывалось к тому, чтобы вы имели более полное представление о том, действительно ли строить мансардный этаж так уж дешево. Получается — не очень. Тем не менее у такого решения есть свои плюсы:
- Мансардный этаж получается легким. Потому фундамент для частных домов потребуется лишь немногим более мощный, чем при устройстве одного этажа. Так как затраты на фундамент — это значительная часть стоимости, то тут выигрыш получается ощутимый. При нехватке средств, утепление мансарды и ввод ее в эксплуатацию можно оттянуть на требуемый срок. Причем эта отсрочка будет полезной. Вот почему. При строительстве почти всегда используют лес высокой влажности. Если начинать утепление сразу, влага будет впитываться в теплоизоляцию. Если «пирог» сделан правильно, она будет уходить естественным образом. Но если имеются нарушения, могут возникнуть проблемы. Если же крыша под кровельным материалом какое-то время простоит без утепления (но с обязательно уложенной под кровельное покрытие гидроизоляцией), то древесина хорошо высохнет и проблем будет меньше. Мансарда позволяет сделать дом оригинальным и нестандартным. В любом случае здание получается более выразительным и индивидуальным — вариантов оформления масса.
Мы постарались наиболее полно описать минусы мансардной крыши и ее плюсы. Если вас трудности не испугали, выбирайте, какая конструкция вам больше по душе.
Типы мансардных крыш
Крыша мансардного типа, используемых при строительстве частных домов, имеет различные варианты устройства. Можно сделать все существующие виды крыш, кроме, пожалуй, плоской. Все остальные могут быть реализованы как в «чистом» виде, так и в комбинации.
Односкатные
Нестандартно выглядят дома с односкатными мансардными крышами. Ее устройство является наиболее простым из-за отсутствия конька и проблем, связанных с его обустройством. Балки опираются на мауэрлат, закрепленный на разноуровневых стенах. Скос образуется за счет разности высоты двух противоположных стен. При этом угол ската должен быть в районе 35°-45°. Меньший наклон приведет к скапливанию большого количества снега, что требует усиления несущих балок и установки дополнительных опор, а это уменьшает и без того не очень большую жилую площадь в таком мансардном этаже.

Если говорить о внешнем оформлении дома, выглядят здания нестандартно. Чаще всего в высокой стене мансардного этажа делается большое окно: сама конструкция к этому располагает. Примеры смотрите на фото ниже.
Устройство односкатной крыши получается наиболее дешевым, если расстояние между двумя противоположными стенами не превышает 4,5 метров: можно на стены уложить стандартной длинны брусья и не делать подпирающие конструкции. Видимо этим и обусловлено решение на фотографиях внизу, но получилось очень интересно.

Если расстояние между стенами меньше, конструкция совсем проста
Двускатные
Двухскатная мансардная крыша — наиболее широко распространена: при общем строении, решений может быть много. Сама конструкция является наиболее оптимальной: при относительно невысоких затратах позволяет удовлетворить различные требования по необходимой площади помещения.
Проще всего реализуется мансарда под обычной двускатной крышей, но высота ее должна быть достаточной, чтобы под ней можно было выделить жилое помещение (если этаж предполагается сделать жилым). Может быть:
- симметричной — конек располагается над серединой здания; асимметричной — конек смещен относительно центра.
Фронтоны при этом прямые. Комната получается трапециевидная, в достаточно широких зданиях можно выделить квадратную. Недостаток двухскатной крыши мансардного типа с том, что отсекается большое пространство по бокам, что в частных домах не всегда приемлемо. Чтобы немалые площади не гуляли, их используют под устройство кладовых или шкафов.

При таком устройстве окна делают в крыше, место их расположения зависит от угла наклона. Могут они быть слуховыми, как на фото вверху или в плоскости крыши, как а фото ниже.

Есть еще один вариант устройства мансардной крыши частного дома с двумя скатами — полуторный этаж. Ее устанавливают на выгнанные до некоторого уровня стены. Дом тогда называют «в полтора этажа» (один из таких домов на фото выше).

Это два вида двухскатных мансардных крыш. Есть еще третий — ломанные. Их можно выделить в отдельную категорию — устройство имеет значительные отличия.
Ломаные
Устройство ломаной мансардной крыши и сложнее и проще. По сути это те же два ската, но состоящие из двух частей с разным уклоном. Такое строение позволяет не тратя средства на возведение стен, получить жилое пространство, лишь немного меньшее, чем на нижнем этаже (примерно на 15%). В этом смысле ее устройство проще. Но стропильная система имеет более сложное строение, и в этом смысле ее устройство сложнее.

Конструкция ломаной мансардной крыши — наиболее часто используемый вариант стропильной системы — с выносом части стропила за поверхность стены. Таким образом образуется свес, защищающий узел примыкания к стенам от осадков
Именно этот тип наиболее распространен при самостоятельном строительстве. Он с легкостью позволяет увеличить полезную площадь, надстроить небольшие постройки типа гаража или , получить дополнительное, почти обособленное, жилье. Так как материалы при строительстве используются обычно легкие, то несущей способности фундамента обычно хватает, но расчет не помещает. ().

Небольшое помещений из бревна внизу, а сверху — обширная мансарда, опирающаяся на стойки
Четырехскатные
Это уже сложные системы, которые обязательно нужно рассчитывать. Поверхность получается большой, расходы на утепление значительно возрастают, вместе с тем уменьшаются размеры мансардного помещения: отсекаются части помещений со всех четырех сторон.
Их плюс — высокая устойчивость к сильным ветрам: все поверхности наклонные и ветровая нагрузка не настолько сильно давит на скаты. Строение таково, что свесы можно сделать низкими, защищая стены от воздействия осадков и ветров. К тому же дома с такими крышами многие считают наиболее привлекательными. Классический вариант четырехскатной крыши — вальмовые.

Один их видов четырехскатных крыш — вальмовая и мансардное помещение под ней. В полный рост стоять можно только в центральной части
При их устройстве усиливают наклонные стропила — на них приходится большая часть нагрузки. Вообще, ее стропильная система — одна из самых сложных, материалоемких и, следовательно, дорогостоящих. Чтобы вы могли оценить весь объем работ и затрат, рассмотрите ее конструкцию на фото ниже.

На верхней картинке видны все упоры, укосы, которые необходимо поставить, на втором, более ясно прорисована структура и расположение стропил.
Есть еще переходной вариант — полувальмовая. Она — это нечто среднее между двускатной и четырехскатной крышей. В этом случае вальма делают только на часть высоты этажа.

Описаны только основные виды мансардных крыш. Есть еще их комбинации. Например, вальмовая может быть еще и ломаной, как и односкатная. Вариантов действительно очень много. Главное не допустить грубых ошибок при разработке стропильной системы, а потом все правильно реализовать.
«Врезание» крыш друг в друга. Г- и Т-образные крыши. Ендовы
Архитекторы называют крышу пятым фасадом — это один из самых выразительных элементов дома. Однако здесь необходимо выдержать баланс между дизайнерским решением и функциональностью крыши. С инженерной точки зрения чем проще крыша, тем меньше хлопот она доставит в строительстве и последующей эксплуатации. При проектировании крыши по бюджетному варианту следует, по возможности, избегать большого количества ендов, высотных перепадов конька, башенок и арочных форм.
На рисунках представлены основные типы простых конструкций крыш, но это всего лишь эскиз. Для правильного построения крыши должен быть разработан план крыши и основные разрезы, учитывающие линейные размеры здания и высотные отметки.
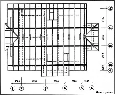
Как построить план крыши? Рассмотрим это на примерах (рис. 49). Современные загородные дома редко имеют план прямоугольника, чаще всего они строятся в виде букв Г, Т или в форме креста. Бывают и другие планировочные решения, нам сейчас важнее разобраться с основными принципами построения плана крыши. Планировку дома можно мысленно разбить на прямоугольники. Самый большой прямоугольник условно назовем основным помещением, а прямоугольники поменьше — пристройками.
рис. 49. Построение плана крыши
Нарисовав план стен, отступают от линий стен на 50 см (нормативный свес крыши) и в масштабе рисуют внешний периметр крыши. Затем на основной крыше рисуем прогон ab, перпендикулярно ему рисуем прогоны на пристройках cd. Теперь если соединить углы смыкания основной крыши и пристроек, то получим линию ендовы — внутреннего угла пересечения крыш. Здесь будет сделаны накосные стропильные ноги.
При одинаковой высоте коньков крыши накосные стропила устанавливаются на всю длину ендовы и будут опираться на мауэрлат и прогон основной крыши, углы скатов основной крыши и пристроек будут разными. Скаты получатся одного уклона только если ширина пристроек будет равна ширине основного помещения.
Укорачивание прогонов cd со стороны точки с изменяет линии ендовы. Расположение ее в плане под углом 45° приводит к тому, что скаты основной крыши и пристроек получатся с одинаковым наклоном, но конек пристройки станет ниже конька основной крыши. Изменением угла наклона ендовы (в плане) можно изменить высоту конька пристройки до требуемой величины. Накосное стропило, установленное в ендове, в этом случае, будет опираться на мауэрлат и прогон пристройки.
Укорачивание прогона со стороны точки а или b либо с обеих сторон приводит к образованию на крыше вальм. То же самое можно сделать с прогоном cd, укорачивая его со стороны точки d получим вальму на пристройке. Кстати, можно и удлинять прогоны, тогда на крыше получим треугольные, увеличенные на коньке, свесы крыши. Если полностью «согнать» прогон, например, прогон ab, в одну точку, получим шатровую крышу, в которой накосные стропила будут сходиться и опираться на единственную стойку.
Крыша мансардного типа с балконом
Как делают мансардные окна в крыше уже описали выше. Практически по тому же принципу строят балконы. Есть даже специальные оконные системы, позволяющие это сделать в поверхности ската. Хоть реализация получается проще, но стоит такое окно прилично.

Если позволяет несущая способность стен, увеличив размеры окна слухового типа, можно сделать висящий балкон.

Балконную площадку могут подпирать колонны. Только в этом случае вынос делается над входом. Тогда колонны органично вписываются, и служат еще и украшением.

Балкон на фронтоне дома с мансардной строится по другому принципу. Защищает его выдвинутый вперед свес, если позволяет стена, площадку делают висящей.

В небольших домах чаще балкон делают за счет того, что фронтон мансардного этажа сдвигают от несущей стены. За счет этого отступа и получается площадка. Козырьки в таких крышах делают продолжив кровлю как минимум, до одного уровня с наружной стеной, а еще лучше — дальше. Этот выступ защитит и стену фронтона и уменьшит количество осадков, которое будет попадать на открытую площадку.

Конструкция этого типа крыши такова, что продлив ее можно сделать даже крытую террасу. Край ее опираться может на декоративную стену или на столбы.

Сложность этого проекта — длинные стропила

Похожая идея реализована в этом проекте, но крыша тут многощипцовая. Ее сложно самостоятельно рассчитать, еще сложнее правильно сделать ендовы, потому они встречаются редко
Если уж говорить о нестандартных решениях, то «Г»-образная мансардная крыша — из двух односкатных получится функциональной. К тому же это недорогой способ оформить такое нестандартное здание.

«Г» образная односкатная мансардная крыша
При строительстве частного дома, бани или хозяйственных сооружений особого подхода требует стропильная система крыши. Важно правильно выполнить расчеты и подготовить для монтажа качественный материал.
Крыша угловая: определение

Г-образная кровля — это сооружение над домом, представляющее собой две стандартные двухскатные крыши, соединенные между собой под прямым углом. То есть, самым сложным узлом в такой конструкции являются места стыков двух стропильных двухскатных систем. А именно — их внешний и внутренний углы. Однако и здесь стоит помнить, что более простой в исполнении является та угловая кровля, фронтоны которой имеют одинаковую ширину. То есть, если торцевые стены двух частей Г-образного дома также имеют единый параметр по ширине.
Более сложной будет являться та крыша, фронтоны которой будут иметь разные ширины. В этом случае высота коньков обеих частей кровли будет различной, а это усложняет стыкование стропильных ног обеих частей конструкции под углом друг к другу. В большинстве случаев такую крышу делают ломаной, где одна ее двухскатная часть располагается несколько ниже другой ее двухскатной части.
То есть, такие виды крыш применяются в основном над зданиями, которые имеют форму литеры Г.
Важно: при правильно проведенных расчетах и монтаже кровли такая стропильная система является даже более надежной, чем простая двухскатная крыша. Поскольку сами по себе стропильные ноги скелета углового перекрытия служат своеобразной жесткой поддержкой остальным элементам.
Проектирование стропильной конструкции
Расчет несущих конструкций в строительстве принято выполнять по методу предельных состояний, т.е. по моменту потери сопротивления конструкцией под воздействием внешних нагрузок вплоть до разрушения или недопустимых повреждений.
Стропильная система достигает предельного состояния, если :
- прочность конструкции полностью исчерпана и она разрушается; прогибы элементов несущего каркаса провоцируют недопустимые нарушения в узлах стропильной системы, причем дальнейшая эксплуатация крыши невозможна без выполнения ремонта.
Согласно строительным нормам, максимально допустимый прогиб стропильной ноги или затяжки составляет 1/200 часть от длины элемента. Чтобы обеспечить высокую надежность конструкции, рекомендуется проектировать крышу с учетом максимально допустимого прогиба в 1/250 часть длины стропила.
Расчет стропильной конструкции крыши ведется с учетом предельных нагрузок со стороны :
- собственного веса; ветрового давления; веса снега; веса людей, обслуживающих или ремонтирующих кровлю (нагрузка от человека обычно принимается как 80 кгс/кв.м).

Для получения информации, на основании которой ведутся расчеты, необходимо располагать :
- СНиПом кровельной конструкции; таблицей расчета сечения стропильной ноги; таблицей сечения стропильной затяжки; климатической картой региона (определение ветровой и снеговой нагрузки).
Расчет сечения бруса, из которого выполняются элементы стропильной конструкции, производится по специальной формуле, в которой учитывается длина стропильной ноги, шаг между стропилами, сопротивляемость выбранного сорта древесины нагрузкам извне.
Таблицы подбора сечений элементов применяются при проектировании простых кровельных конструкций. Разработка проекта крыши сложных форм требует профессионального подхода.
Понятие ендовы
Под понятием ендова подразумевается внутренний угол кровли, который образуется в местах соединения двух скатов. Этот конструктивный элемент является в устройстве кровельной системы ключевым узлом.
Ендова подвержена значительным нагрузкам, так как она более, чем другие элементы кровли, испытывает воздействия атмосферных осадков.
Такие факторы определяют жесткие требования, как к качеству кровельных материалов, так и к технологиям, по которым возводится крыша ендовая. Ее устройству уделяется особое внимание, будь то крыша:
- крестообразная;
- вальмовая;
- двухскатная;
- шатровая.
Внимание. Любые ошибки в проектировании или строительстве могут привести к ущербу кровли – от проточек до обрушения всей кровельной конструкции, например, в результате скопления большого количества снега.
Узлы стропильной системы
На надежность стропильной конструкции влияют следующие факторы :
- правильный выбор конфигурации стропильной системы; прочность соединений в узлах конструкции; точность инженерных расчетов при проектировании крыши; правильный выбор и качество материалов; качество монтажа.
Тип стропильной системы, наличие определенных узлов элементов диктуется :
- проектируемой формой крыши; размерами перекрываемого пространства; наличием и расположением внутренних опор или несущих стен.
При строительстве домов с эксплуатируемым чердаком или мансардным этажом обычно используются стропильные конструкции с наслонными стропилами. К их основным узлам относятся :
- узел опирания стропильных ног; коньковый узел; узел «стропило-подкос-стойка»; узел «балка-стойка подкосы» и т.д.

При проектировании важно сразу определиться со способами крепежа элементов. Выбор зависит от некоторых особенностей пиломатериала, а также предпочтений людей, ведущих строительные работы.
Ключевые этапы возведения крыши
Монтажные работы начинаются после подготовки проекта, в котором указаны все размеры элементов и их взаимное расположение, а также принципы соединения. Кроме того, следует закупить и привезти необходимые строительные материалы, инструменты, крепежные элементы и т.д.
Принципы строительства скатной крыши, в целом, не зависят от ее конфигурации. Технология работ включает в себя следующие этапы :

Прежде чем приступать к самостоятельным работам, рекомендуется ознакомиться с тематическим видео.
Монтаж для мягкой кровли ↑
Остановимся на основных принципах устройства конструкции в случае мягкой кровли.
Подготовительные работы ↑
Оформить отрицательный излом сложной крыши можно, по крайней мере, в двух вариантах:
- открытый;
- метод подреза.
Основание подготавливают в зависимости от выбранного варианта.
- Открытый. По длине ендовы на подкладочный барьер укладывают ендовый ковер (КЕ), сместив по горизонтали на 20–30 мм. С изнанки по всему периметру его промазывают мастикой , скажем, битумной ТехноНиколь полоской шириной 100 мм. Толщину слоя подбирают в соответствии с нормой расхода. По лицевой стороне ковер фиксируют при помощи кровельных гвоздей с шагом 200–250 мм с отступом от краев в 20–30 мм.
- При использовании варианта «подрез» КЕ не нужен.
Монтаж открытым способом ↑
- рядовую черепицу укладывают на КЕ до центральной оси;
- все черепицы, которые накрывают внутренний угол между скатами, дополнительно закрепляют за верхнюю вершину, используя для этого гвозди.
- расстояние от оси до крепежного элемента должно быть больше 0,3 м;
- далее, используя мелованный шнур, отбивают две линии, по ним будут прорезать рядовую черепицу;
- гидроизоляционный ковер можно повредить при подрезке, поэтому под каждую черепицу в процессе работы подкладывают дощечку;
- перед окончательным креплением на места без самоклеящегося слоя наносят битумную мастику;
- если разница между уклонами скатов большая и, соответственно, заметно разнится и поток воды, желоб смещают по направлению меньшего водопотока. В противном случае вода будет подмывать стык между ковром ендовы и рядовой черепицей;
- ширина желоба колеблется в пределах 50–150 мм. Выбор зависит от особенностей места расположения объекта. Если он построен в лесной чаще, рекомендуется ширину желоба увеличить, чтобы листва могла беспрепятственно смываться.
Монтаж способом «подреза» ↑
- укладку рядовой черепицы начинают со ската, имеющего меньший угол наклона. При этом предполагается заход на второй скат, более крутой. Он не должен быть меньше 300 мм.
- аналогично предыдущему случаю необходима дополнительная фиксация каждой панели в верхнем углу.
- после того как будет укрыт первый скат, у которого угол наклона меньше, на другом на расстоянии 70–80 мм от оси «отбивают» меловую черту. Это место будущего подреза черепицы.
- это касается каждой черепицы, и прежде, чем их окончательно закреплять, места где с изнаночной стороны отсутствует самоклеящийся слой наносят мастику.
Особенности крыши с ендовой
Устройство стропильной системы крыши сложной формы (многощипцовых крыш) требует создания соединений коньков и скатов. Плоскости скатов могут иметь различную геометрическую форму: треугольник, прямоугольник, трапеция. Ендова – это место примыкания скатов с образованием отрицательного угла.
В плане дома крыши с ендовами выглядят крестообразными, Т-бразными или Г-образными. Это два основных способа создания примыканий крыш. На стадии проектирования выполняется план крыши (вид сверху) с учетом мансардных и слуховых окон, всех примыканий, крыш над террасами или верандами, с указанием всех линейных размеров. Общий план крыши разбивается на прямоугольники и квадраты, на нем обозначаются основные помещения и пристройки.
На плане крыши следует указать главные прогоны, а в перпендикулярном направлении обозначить второстепенные прогоны над помещениями меньшего размера. Затем прорисовываются линии, соединяющие углы крыши над второстепенными помещениями с углами основной крыши. Эти диагональные линии и обозначают месторасположение ендов – внутренних углов, образованных примыканием скатов.

При монтаже стропильной системы, ендовы на стыках кровель одинаковой высоты (т.е. если коньковые прогоны расположены на одном уровне), представляют собой диагональные стропила, опирающиеся верхним концом на коньковый прогон, а нижним – на мауэрлат. Монтаж таких стропильных ног выполняется аналогично установке диагональных стропил вальмовой крыши.
В зависимости от размеров пристроек, углы кровельных скатов могут иметь различные значения. Геометрию кровли можно изменять, укорачивая размер прогонов. Соответственно меняется и угол наклона ендовы. Стропильная система крыши с ендовой может выполняться распорным или безраспорным методом. Если устанавливаются распорные стропила, то для снятия лишнего напряжения следует закрепить горизонтальную схватку в нижней части конструкции.
Монтаж ендовы
Проектирование и монтаж крыши с ендовами достаточно сложны. При этом ошибки могут привести к обрушению крыши или протечкам. Одно из предназначений ендовы – обеспечение схода атмосферных осадков. По своей конструкции различаются ендовы :
- открытые; закрытые; переплетенные.
Для монтажа ендовы на сопрягающихся скатах требуется смонтировать сплошную обрешетку. По деревянному желобу прокладывается гидроизоляцию – лучше укладывать ее в два слоя. Затем саморезами крепится ендова. Если ее стыки горизонтальны, величина нахлеста должна составлять не менее 100 мм (рекомендованное значение – 300 мм). В случае если ендова монтируется на скат с небольшим углом наклона, рекомендуется добавить еще один слой гидроизоляции, а при монтаже ендовы на кровле из металлочерепицы дополнительно применить саморасширяющийся уплотнитель.
Ендова открытого типа проще в монтаже и лучше отводит осадки. Закрытые и переплетенные конструкции обычно используются на крышах с крутыми скатами, порытыми определенными кровельными материалами. К их недостаткам относятся повышенные расходы на дополнительную гидроизоляцию и некоторые сложности в монтаже. Переплетенные и закрытые ендовы хуже отводят осадки, а в холодном климате в зимнее время служат местом скопления и уплотнения снега.
Видео инструкция позволит разобраться в тонкостях возведения стропильных и кровельных конструкций наиболее популярных типов.
Автор Павлов Юрий Николаевич
Материалы для создания крыши
Так как наша Г-образная кровля имеет форму буквой Г, а составные части стыкуются под углом в 90°, логично, что для работы потребуется большое количество элементов. Если сравнивать, то нужных материалов потратится столько, сколько на создание вальмовой крыши. Чтобы сделать конструкцию, потребуются следующие элементы:
- Мауэрлат, как основа крыши. Это деревянная балка, которая устанавливается по периметру всего дома на верх стены. Именно мауэрлат принимает на себя основную нагрузку, распределяя ее по всему периметру. Балки фиксируются анкерами к стене.
Обратите внимание! Если Г-образная конструкция крыши будет возводиться на деревянном доме, то необязательно дополнительно использовать мауэрлат. Его роль будет выполнять последний брус кладки стены. - Прогон. Так называется деревянный длинный брус. Он укладывается в двух частях дома. Он размещается по центру осей между одной и другой торцевой стеной. Прогоны выполняют роль основания для вертикальных стоек конькового бруса. На фото видно, где они находятся.

- Зятяжки. Это доски из дерева, которые служат ребрами жесткости и балками перекрытия пола.
- Стойки-опоры крыши. Это деревянный брус, уложенный в вертикальном положении. Он служит опорой для прогона конька и монтируется в двух концах. Если говорить о Г-образной кровле, то таких стоек опор нужно 3 шт.: одна из стоек устанавливается на стыке коньков, а другие две находятся на противоположенных концах.
- Конек. Прогон из бруса, используемый для верхнего основания стропильных ног.
- Основные стропила крыши. Элементы из дерева, которые устанавливаются под углом друг к другу, соединяются в верхней точке стыкованием (на коньке). Получается, что два стропила, установленные параллельно друг к другу, формируют треугольную ферму. Каждая стропильная нога монтируется с шагом от 50 до 70 см. Все зависит от толщины кровельного пирога и общего веса.
- Диагональные или угловые стропила. Именно такие стропила являются основными и в вальмовой кровле. Нужно понимать, что на такие элементы ложится нагрузка от всех частей кровли. Вот почему их нужно делать сдвоенными по их толщине. Монтируются диагональные стропила по внешнему и внутреннему углу крыши.
- Нарожники. Так называются короткие стропила. Они устанавливаются с упором в угловое стропило одним концом и с упором другим концом в мауэрлат. Нарожники монтируются параллельно основным стропильным ногам.
- Раскосины. Деревянный брус, который придает каркасу кровли больше жесткости.
- Шпренгель. Еще один элемент для жесткости конструкции, который монтируется на углах мауэрлата.

Обратите внимание! Чтобы создать основную конструкцию Г-образной кровли, используется брус, сечение которого составляет 10х15, 15х15, 15х20 см.
Угловые стропила создаются из сдвоенного бруса или обрезной доски (сечение 10х5 см или 15х5 см). Если стропила обычные, то сдваивать элементы необязательно. Все пиломатериалы должны иметь влажность не больше 15–20%. Это нужно для того, чтобы каркас не слишком сильно уседал. Это может разрушить конструкцию.
Как правильно подшить крышу Софитом?
Установка софита — это процесс закрытия свеса крыши, при котором используются специальные материалы для облицовки и защиты конструкции. Для правильной установки софита вам понадобится следующее:
-
Измерьте свес крыши, чтобы определить количество и размеры панелей софита, необходимых для работы.
-
Прикрепите J-образные крепления к краю карниза крыши, используя винты.
-
Установите первую панель софита на место, начиная с угла крыши и поднимаясь вверх.
-
Подрежьте панель под нужный угол, если она не подходит по размеру.
-
Поднимите следующую панель и вставьте ее в первую панель, используя специальные фиксаторы на концах.
-
Продолжайте повторять процесс установки панелей софита до тех пор, пока не достигнете конца крыши.
-
Установите L-образные крепления вдоль боковых граней крыши и закрепите ими концы панелей софита.
-
Для дополнительной защиты установите москитную сетку на обратную сторону панелей софита.
Следуя этим инструкциям, вы сможете правильно подшить крышу софитом и обеспечить защиту от осадков и насекомых.
